WERK   BÜRO   TEAM   JOBS  
ENGEHALDENSTR. 20   CH-3012 BERN   +41 (0)31 332 80 20   OFFICE@LEISMANN.CH


Neubau Kultur- und Sporthalle Murten   CH-Murten   2022   Studienauftrag

SITUATION
Das zu planende Areal befindet sich vor den Toren der historisch bedeutsamen Murtener Altstadt. Das Baufeld ist Teil des Schulareals Berntor und Längmatt und schliesst im Süden an den Hauptzubringer Bernstrasse an. Die bestehende Schulanlage besteht aus dem klassizistischen Berntorschulhaus sowie dem Schulhaus Längmatt, das erst 2020 durch eine Aufstockung erweitert wurde. Die bestehende Turnhalle sowie das Feuerwehrgebäude sollen einer öffentlichen Sport-, Kultur- sowie Gemeindenutzung weichen. Westlich an das Baufeld grenzt das Hotel Murten, welches grossmehrheitlich durch einen Neubau ersetzt und mit einem neuen Verkehrsanschluss für Parkierung und Anlieferung an die Bernstrasse anschliesst und so eine räumliche Verengung für das Areal bedeutet. In der Mitte greift das L-förmige Baufeld über den grünen Freiraum der Engematte, die weitgehend erhalten werden soll. Östlich wird die ausgewiesene Baufläche durch den Friedhofweg mit anschliessender Friedhofanlage abgeschlossen.
Die umliegende Bebauung zeigt sich heterogen. Sie zeichnet sich durch einfache Gewerbe- und Industriebauten aus, zwischen denen vereinzelt historische Bauten, wie die Alte Turnhalle, die Uhrmacherfabrik oder das Berntorschulhaus, eingestreut sind. Vor allem das im nördlichen Bereich angrenzende Wohnquartier zeichnet sich durch kleinmassstäbliche Gebäude aus. Entlang der Bernstrasse wird die Abfolge grossflächiger Gewerbebauten partiell durch kleinere Bürogebäude unterbrochen. Der zur Verfügung stehende Projektperimeter wurde im Zuge der Rückmeldung nach der Zwischenpräsentation sowohl gegen Norden als auch gegen Westen erweitert.

STÄDTEBAU
Die heterogene Situation, die verschiedenen Nutzungsgruppen sowie das kompakte L-förmige Baufeld bedingen eine geschickte Setzung eines mehrteiligen Gebäudekomplexes mit differenzierter Höhenstaffelung. So können die Bereiche der unterschiedlichen Nutzergruppen entflochten werden und gleichzeitig kann auf die spezifische städtebauliche Situation reagiert werden. An der Ecke Bernstrasse - Friedhofweg werden die Besuchenden von einem markanten Punktbau, dem neuen Haus der Begegnung empfangen. Hier sind die Nutzungen des Sozialdiensts verortet. So befinden sich platzseitig im Erdgeschoss die Multifunktionsräume mit öffentlichem Charakter und darüber die Büroräumlichkeiten. Über einen gedeckten Eingangsbereich an der Ecke Bernstrasse - Friedhofweg betreten Angestellte und Kundschaft die Büros sowie die Tiefgarage. Die Rampenzufahrt in die Einstellhalle befindet sich ebenfalls im Gebäude und wird vom Friedhofweg erschlossen. Zwischen dem neuen Gemeindehaus und dem Hotel Murten spannt sich ein öffentlicher Platz mit städtischem Charakter auf. Er lenkt die Besuchenden ins Zentrum des Grundstücks, wo sich in dessen Kreuzpunkt mit der Berntor-Achse, der überdachte Haupteingang zum neuen Kultur- und Sportzentrum Murten befindet. Ein weiterer Zugang führt vom Berntor, entlang des historischen Schulhauses auf den Platz der Begegnung. Barrierefrei können der Platz sowie die Eingänge beider Häuser von Seite Bernstrasse, entlang der Ligusterhecke erschlossen werden.

ARCHITEKTUR
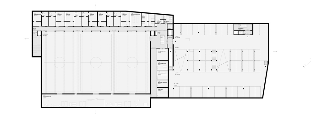
In der Eingangshalle werden die öffentlichen Nutzungen der Anlage erschlossen: der Kultursaal, die Sporthalle sowie die Tribüne. Die präzise Platzierung der Gebäudevolumen und Freiflächen erlaubt zudem Sichtbeziehungen zwischen der Halle und der Bernstrasse.
Die Kultur- und Sporthalle besteht aus zwei übereinandergelagerten Volumen, wodurch das Gebäude gegen Engematte weniger gross in Erscheinung tritt und sich rücksichtsvoll in die Umgebung einfügt. Zudem entsteht durch den Rücksprung eine Terrasse für den Kulturbereich -als Erweiterung des Foyerbereichs- als auch Platz für einen Schulgarten. Das Erdgeschoss ist zum Sockel ausgebildet, wodurch die Gliederung des Gebäudes eine weitere Differenzierung erhält und den menschlichen Massstab berücksichtigt.
Entlang des Friedhofwegs entsteht zwischen den beiden Neubauten ein zusätzlicher kleinerer Platz mit Treppenanlage, der zum Verweilen einlädt. Ausserdem erfolgt eine weitere Erschliessung der Tribüne sowie die Anlieferung ebenerdig entlang des Friedhofwegs. Die Transparenz der Fassade als auch die Eingänge entlang des Friedhofwegs schaffen räumliche Bezüge und bedeuten so eine städtebauliche Aufwertung. Weiter nördlich werden die Schulnutzungen angeschlossen: das Schulhaus Längmatt, die Aussensportfelder sowie der Zugang zur Dreifachturnhalle für die Schülerschaft.

Haus der Begegnung
Beim Haus der Begegnung handelt es sich um ein Gewerbehaus mit überhohem Erdgeschoss und drei Bürogeschossen. Dank mittigem Kern und lateral gelegenem Treppenhaus sind unabhängige Erschliessungen möglich, die die Sicherheit der Mitarbeiter und Besucher gewährleisten. Die Geschosse können als Mieterausbau flexibel gestaltet werden. Die Fassade der Kultur- und Sporthalle führt die städtebauliche Idee der Stapelung fort. Im Erdgeschoss ist das Gebäude zu einem monolithischen Sockel aus Ortbeton ausgebildet, auf dem ein Aufbau in Leichtbauweise thront. Diese Fassade weist eine regelmässige Vertikalgliederung auf, deren Unterteilung durch schlanke Aluminiumprofile erfolgt. Die sich dazwischen aufspannenden Felder sind entweder Fensterflächen oder werden mit texturierten Kunststeinplatten (Eternit Texial) gefüllt. Über den Fenstern mit Eichenholz-Rahmen sind festmontierte Sonnenschutzpaneele montiert. Diese Brise Soleil verstärken den textilen Ausdruck der Fassade und verleihen dem Kulturzentrum einen festlichen Charakter.
Die Gestaltung des Gewerbehauses weist eine eigenständige Fassade mit umlaufendem Raster auf. Diese einfache Skelettstruktur mit einem Büroraster von 1.30m aus Beton, mit Füllungen aus Holzaluminium-Verglasungen und Brüstungsfelder und einer Eternit Texial Füllung ergeben eine zurückhaltende, elegante Materialisierung. Die dreigeteilten Fensterelemente haben eine liegende Proportion und eine blickdichte Brüstung. Im Erdgeschoss gibt es Rücksprünge in der Fassade, wodurch zwei gedeckte Arkaden entstehen. Die Rahmen der Fenster sind aus Aluminium, wechseln aber im Eingangsbereich auf das Material Holz.

FREIRAUMKONZEPT
Der Freiraum ist klar in eine der Schule und eine der Kultur- und Sportnutzung zugewiesene Zone gegliedert. Der Bestand an Bäumen und Sträuchern wird wo immer erhalten und in die Neugestaltung miteingebunden. Das Konzept sieht vor, dass der Baumbestand auf dem Areal geschont wird und darüber hinaus Ergänzung findet. Im Zentrum des Areals steht das Quartett der «Chegele» (Aesculus hippocastanum).
Die Aufenthalts-, Spiel- und Pausenbereiche der Schule werden im Sinne der bestehenden naturnahen und kleinteiligen Freiraumstruktur mit leichten Modellierungen weiterentwickelt, wenn nötig auch neu entwickelt. Das Zentrum bildet die grosszügige ‘Neue Matte’, eine Rasenfläche mit über 1’000m2 Fläche, ausgestattet mit Fussballtoren etc. Sie ist so ausgebildet, dass sich auch fussballferne Nutzungen der grossen Grünfläche anbieten (gendergerecht). Diese Spielfläche ist eingebettet in das abwechslungsreiche Angebot der bestehenden Aussenraumgestaltung
Auf Seite Bernstrasse bildet der Platz der Begegnung den Auftakt zur neuen Kultur- und Sporthalle. Er bildet die Adresse zur Bernstrasse, ist sowohl Ankunftsort, Treffpunkt und Aufenthaltsfläche. Im Sinne einer erhöhten Biodiversität werden verschiedene einheimische Laubbaumarten gepflanzt (Sommerlinde, Hagebuche, Hopfenbuche und Spitzahorn). Unter den Bäumen sind kiesige Bereiche ausgewiesen und die Fugen der Pflästerung sind je nach Nutzung unterschiedlich intensiv begrünt. Eine Stampfbetonmauer und eine breite Ligusterhecke bilden den Abschluss zur anschliessenden Einstellhalleneinfahrt des Hotel Murten.


ARGE mit Winkelmann Architekten AG, CH-Murten
Landschaft: Klötzli Friedli Landschaftsarchitekten AG, CH-Bern
Bauingenieure: Schnetzer Puskas Ingenieure, CH-Bern
Gebäudetechnik: B2 Gebäudetechnik,CH-Murten
Brandschutz: Wälchli Architekten Planer AG, CH-Bern
Bauherr: Gemeinde Murten
Fläche: 10’369m2 GF