WERK   BÜRO   TEAM   JOBS  
ENGEHALDENSTR. 20   CH-3012 BERN   +41 (0)31 332 80 20   OFFICE@LEISMANN.CH


Neubau Verwaltungsgebäude   CH-Appenzell   2020   Studienauftrag

SITUATION
Das zu planende Gebiet für das neue Verwaltungsgebäude befindet sich am Rand der Kernzone von Appenzell in unmittelbarer Nähe zum Landsgemeindeplatz. Es wird südseitig durch die Marktgasse begrenzt und nordseitig durch einen offen gestalteten Erschliessungshof mit Garage. Westseitig fasst das Blumengeschäft mit grossem Vorplatz und ostseitig der schmaler Weg zum Friedhof das Areal. Die Erdgeschosse sind grössenteils mit Gastronomie- oder Verkaufsnutzung belegt, in den Obergeschossen wird gewohnt. Im Unterschied zur Appenzeller Hauptgasse ist die umliegende bauliche Struktur nicht strassenbegleitend geschlossen, sondern offen mit Solitären aufgebaut.

STÄDTEBAU
Durch die präzise Setzung und Drehung eines kompakten Würfelvolumens werden zwei Plätze gebildet. Einer im Bezug zum Landsgemeindeplatz und einer zur Marktgasse. Die zwei Hauptnutzungen finden damit jeweils ihren Eingang und Vorplatz: westseitig die Verwaltung und ostseitig die Bibliolthek. Ein Kreuzdach mit vier Giebelfassaden unterstützt die Geste und stärkt die Position des Gebäudes als wichtiges öffentliches Haus im Stadtraum. Auch die Kirche und der Friedhof im Norden werden durch die Solitärstellung und Ausrichtung mit einbezogen, und sind nun Teil des Stadtgefüges. Der Höhenversprung zum Erschliessungshof wird durch einen hinauslaufenden Sockel aufgenommen. Eine neue Aussentreppe verbindet die untere Zielstrasse mit der Marktgasse und verbessert die Durchwegung.

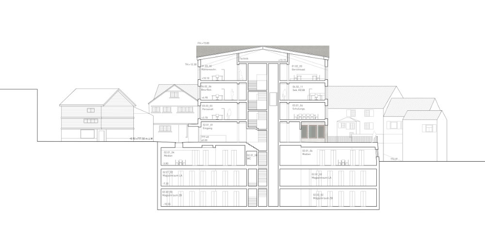
ARCHITEKTUR
Vortretende Eingänge bilden einen gedeckten Vorbereich und dienen als klare Schwelle zwischen Aussen und Innen. Die Bibliotheksnutzung verteilt sich über das Erd- und das 1. Untergeschoss. Direkt am Eingang befindet sich der Empfang mit Ausleihe als erster Kundenkontakt. Arbeitsstationen und Sitzgelegenheiten geben dem grosszügigen Foyer einen öffentlichen Charakter. Angrenzend steht der grosse Leseraum für Veranstaltungen auch ausserhalb der Öffnungszeiten zur Verfügung. Der kleine Leseraum sowie Büro Landesarchiv und Kantonsbibliothek sind dahinterliegend gut erschlossen.
Die zentral angeordnete Treppe im Kern führt ins 1. Unterschoss. Hier werden alle Medien in Freihandaustellung der Zentralbibliothek bzw. des Landesarchives bereitstellt. Ostseitig stehen Einzel- und Gruppenarbeitsplätze zur Verfügung. Fenster im austretenden Sockel stellen den Tageslicht- und Aussenraumbezug in den Büroräume sicher. Die Bibliothek wird über Oberlicheter im Sockel belichtet. Im Norden direkt unterhalb der Anlieferung am Warenlift werden in der Akzession mit Sortieraum und Materiallager die Ein- und Ausgänge verarbeitet. Über Oberlicher wird hier das benötigte Tageslicht an die Arbeitsplätze geführt.
Landesarchiv und Zentralbibliothek sowie die Archivräume der Departements sind mit den geforderten Rollregalanlagen effizient im 2. und 3. Untergeschoss organisiert. Die einzelnen Departements des Verwaltungsgebäude sind kompakt und übersichtlich auf den drei Obergeschossen organisiert. Über eine kleine Eingangshalle mit einer Informationstafel wird das zentrale Treppenhaus mit Lift erreicht, welches die vertikale Erschliessung sicherstellt. Mit Vorraum und Schalter am Kern liegend werden die einzelnen Abteilungen für die Besucher erreicht und dem 3 Zonen Sicherheitsprinzip Rechnung getragen. Das 1. Obergeschoss ist für die Räume des Finanzdepartements reserviert. Im 2. Obergeschoss befindet sich das Department für Gesundheit und Soziales. Im 3. Obergeschoss liegen die Räume der Gerichte. Der gemeinschaftliche Pausenraum mit Teeküche befindet sich im Erdgeschoss. Um eine nutzungsseitige Büroflexibilität zu gewährleisten sind die Fassaden auf einem Innenraster von 1.35m aufgebaut. Durch breitere Wandteile stehen weitere Anschlussbereiche für die Trennwände zur Verfügung.
Ausgehend vom Appenzellerhaus wurden drei Elemente bei der Fassadengestaltung aufgenommen. Sie gliedert sich in drei Bereiche: Sockel, Mittelbau und Dachgeschoss. Eine grosse zentrale Öffnung bildet im Erdgeschoss den Eingang, welcher durch zwei Fenster gerahmt wird. In zweier Gruppen zusammengefasste Fensteröffnungen schaffen ein regelmässiges Bild im Mittelbau, wobei ein Versatz im Dachgeschoss die Gestaltung abschliesst.
Die Fassadenöffnungen werden mit rot gestrichenen Holzementen gefüllt. Die darin liegenden weissen Holzfenster bilden einen farblichen Kontrast und sind typisch für das Appenzeller Ortsbild. Die Erscheinung ist analog der bestehenden Verwaltungsbauten Mural und wird aus Grün eingefärbtem Beton erstellt. Ein abwechselndes Schalungsbild, zwischen den Fenstern vertikal und horizontal im Geschossübergang brechen die homogenität der Oberfläche und schaffen eine subtile Differenzierung im Fassadenausdruck. Das Dach als prägendes Gebäudeteil wird mit dunkelbraunem Biberschwanzziegel gedeckt.


Landschaft: Luzius Saurer Landschaftsarchitekt, CH-Hinterkappelen
Bauherr: Amt für Hochbau und Energie des Kt. Appenzell Innerrhoden
Fläche: 3'870m2 GF