WERK   BÜRO   TEAM   JOBS  
ENGEHALDENSTR. 20   CH-3012 BERN   +41 (0)31 332 80 20   OFFICE@LEISMANN.CH


Gemeindeverwaltung   CH-Sigriswil   2015   Studienauftrag

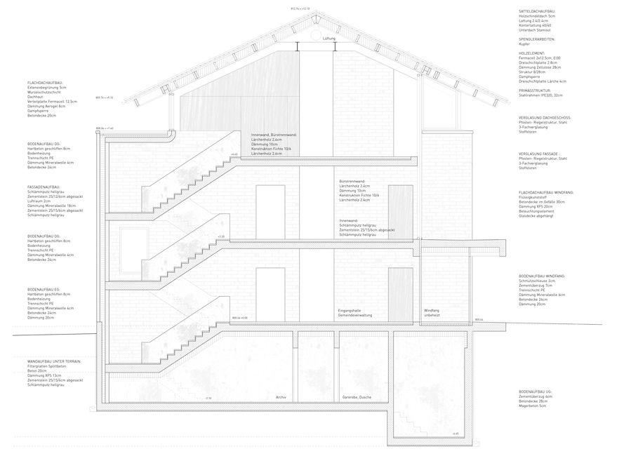
Der Dorfkern von Sigriswil ist von der zweiseitigen Dorfstrasse umschlossen, welche sich bei Kreuzungen zu einem Trapezförmigen Platz aufweitet. Holzhäuser, mit geringen Abständen zu einander, prägen ihn. Die Kirche mit ihren benachbarten Häusern sind massive Gebäude, was sie als Sondernutzungen auszeichnen. Dienstleistungs- und Gewerbenutzungen reihen sich beidseitig der Dorfstrasse auf. Die geplante Gemeindeverwaltung mit Dorfplatz übernehmen diese Ortstypischen Merkmale. Vor dem Gemeindehaus weitet sich der Strassenraum trapezförmig zu neuen Dorfplatz auf und bindet die angrenzenden Geschäfte räumlich mit ein. Die Westausrichtung garantieren ihm eine optimale Besonnung in den Abendstunden. Wichtige Bezugs- und Attraktionspunkte, wie Kirche und Niesen, sind vom neuen Dorfplatz aus gut sichtbar und erhöhen die Aufenthaltsqualität. Als Sondernutzung ist der Neubau analog der Kirche ein hellgrau geschlämmter Massivbau. Durch die Gliederung des langen Baukörpers in vier Teile wird die bestehende Körnung aufgenommen. Die Eingänge für die Bibliothek, Gemeindeverwaltung und Post mit Tourismusbüro befinden sich in den Fugen zwischen den Teilen entlang des neuen Dorfplatzes. Die verschiedenen Nutzungen werden eigenständig wahrgenommen und sind innerhalb des Gebäudes für mögliche Synergien miteinander verbunden. Das mit Holzschindeln gedeckte Dach fasst die einzelnen Gebäudeteile zusammen. Das Gebäude der Gemeindeverwaltung hat zwei Vollgeschosse und ein Dachgeschoss. Eine zentrale Treppe und ein angrenzender Lift erschliesst das Gebäude vertikal. Die Schalter der verschiedenen Abteilungen der Verwaltung sind direkt an dem Treppenraum angeschlossen und einfach auffindbar. Beidseitig des Treppenraumes sind die Büroräume angeordnet. Die Räume sind auf einem Raster von 1.25m aufgebaut und flexibel unterteilbar. Die grösseren, unterteilbaren Sitzungszimmer und die Cafeteria befinden sich im Dachgeschoss.


Landschaftsarchitektur: extra Landschaftsarchitekten AG, CH-Bern
Bauherr: Einwohnergemeinde Sigriswil, Gemeinderat
Fläche: 1'970m2 GF